






Denne velbeliggende grund i Dybbøl tilbyder spændende udviklingsmuligheder. Grunden er oprindeligt på 9.206 m², men vil efter udstykning udgøre ca. 4.706 m².
Ifølge kommuneplanen er området udlagt til boligformål i form af åben lav og tæt lav helårsbebyggelse.
- Maksimalt antal etager: 2
- Maksimal bygningshøjde: 8,5 meter
- Bebyggelsesprocent: Op til 30 % for åben-lav bebyggelse og op til 40 % for tæt-lav bebyggelse.
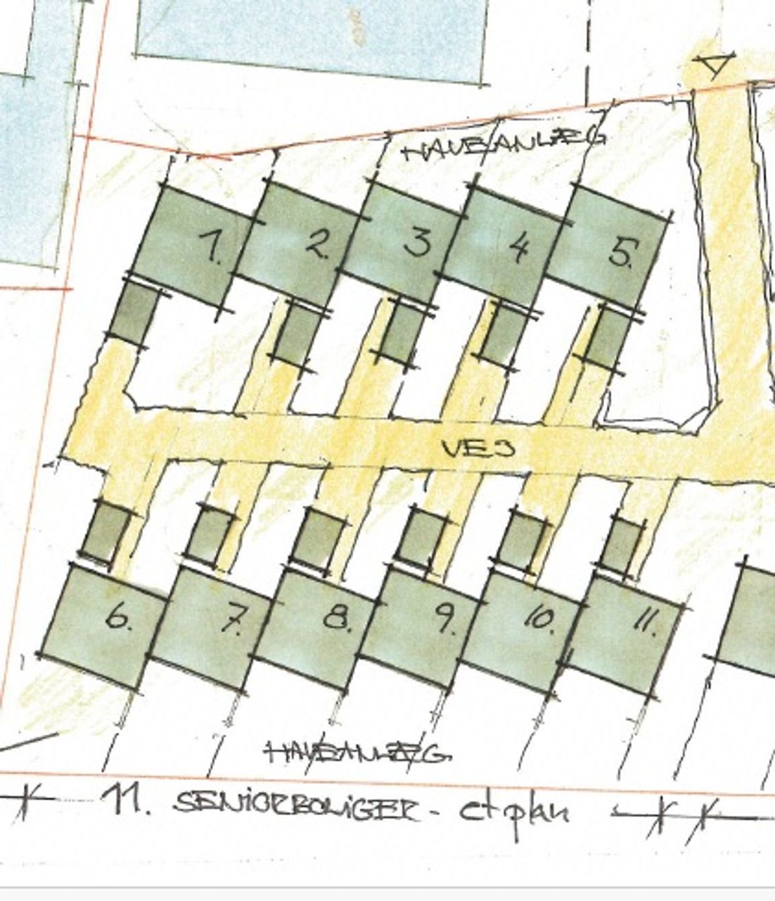
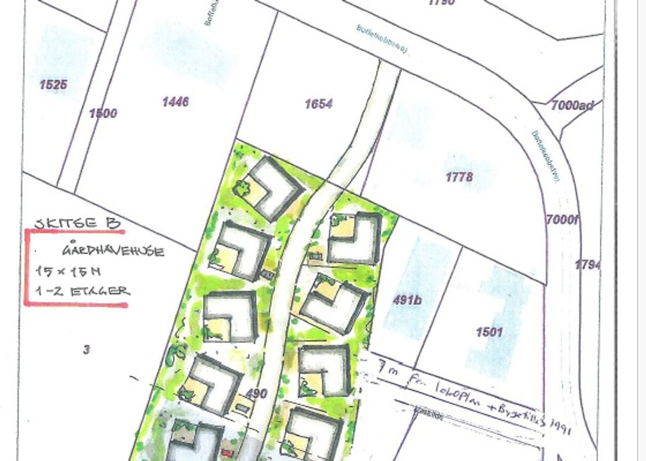
Der er ansøgt om ændring af lokalplanen, så anvendelsen kan præciseres og tilpasses projektmulighederne, herunder opførelse af rækkehuse eller lignende. Der foreligger idéoplæg til bebyggelse, som kan danne grundlag for den videre udvikling.
Alternativt kan hele grunden på 9.206 m² erhverves samlet, inkl. haller på i alt 1.800 m². Samlet pris for hele ejendommen er kr. 6.195.000.
Beliggenheden i Dybbøl giver nem adgang til Sønderborg bymidte, indkøbsmuligheder og øvrig infrastruktur, hvilket gør grunden attraktiv for både bolig- og erhvervsprojekter.
Denne velbeliggende grund i Dybbøl tilbyder spændende udviklingsmuligheder. Grunden er oprindeligt på 9.206 m², men vil efter udstykning udgøre ca. 4.706 m².
Ifølge kommuneplanen er området udlagt til boligformål i form af åben lav og tæt lav helårsbebyggelse.
- Maksimalt antal etager: 2
- Maksimal bygningshøjde: 8,5 meter
- Bebyggelsesprocent: Op til 30 % for åben-lav bebyggelse og op til 40 % for tæt-lav bebyggelse.
Der er ansøgt om ændring af lokalplanen, så anvendelsen kan præciseres og tilpasses projektmulighederne, herunder opførelse af rækkehuse eller lignende. Der foreligger idéoplæg til bebyggelse, som kan danne grundlag for den videre udvikling.
Alternativt kan hele grunden på 9.206 m² erhverves samlet, inkl. haller på i alt 1.800 m². Samlet pris for hele ejendommen er kr. 6.195.000.
Beliggenheden i Dybbøl giver nem adgang til Sønderborg bymidte, indkøbsmuligheder og øvrig infrastruktur, hvilket gør grunden attraktiv for både bolig- og erhvervsprojekter.


