




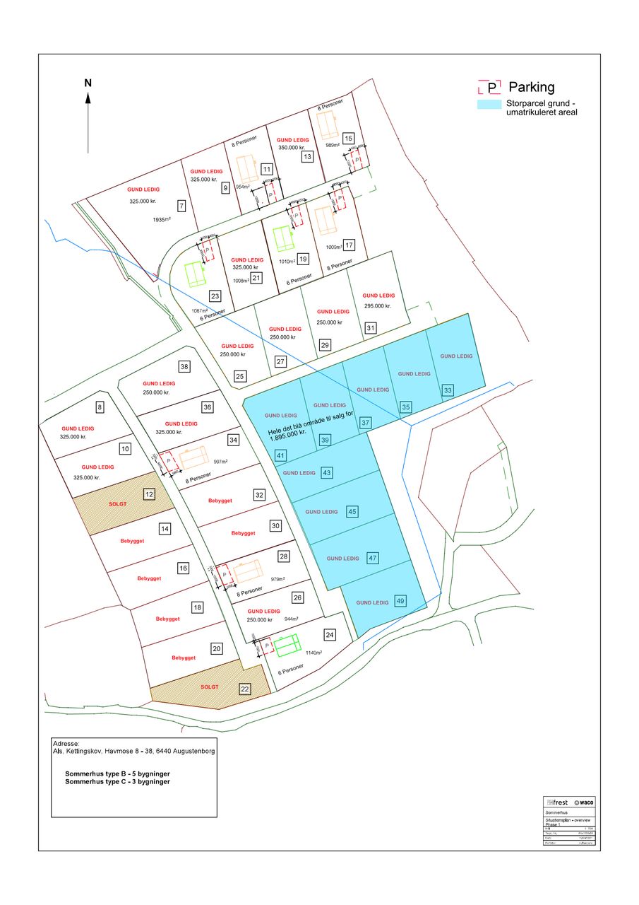
Grunden er beliggende i et område omfattet af gældende lokalplan, som giver mulighed for udstykning og opførelse af op til 9 sommerhuse. Ejendommen udbydes som projekt og henvender sig til udviklere og investorer, der ønsker et afklaret sommerhusprojekt.
Lokalplanen fastlægger anvendelsen til sommerhusformål og sikrer klare rammer for bebyggelsens omfang, placering og udformning. Området er velegnet til etablering af et samlet sommerhusområde med selvstændige grunde og har samtidig kort afstand til vandet, hvilket øger områdets rekreative og kommercielle attraktivitet.
Projektet giver fleksibilitet, idet køber kan vælge enten at udstykke og sælge grundene enkeltvis eller udvikle projektet med opførelse af færdige sommerhuse. Køber forestår selv udstykning, byggemodning og den videre udvikling i overensstemmelse med lokalplanens bestemmelser.
En attraktiv projektmulighed for den, der søger et overskueligt sommerhusprojekt i et planmæssigt afklaret område tæt på kysten.
Grunden er beliggende i et område omfattet af gældende lokalplan, som giver mulighed for udstykning og opførelse af op til 9 sommerhuse. Ejendommen udbydes som projekt og henvender sig til udviklere og investorer, der ønsker et afklaret sommerhusprojekt.
Lokalplanen fastlægger anvendelsen til sommerhusformål og sikrer klare rammer for bebyggelsens omfang, placering og udformning. Området er velegnet til etablering af et samlet sommerhusområde med selvstændige grunde og har samtidig kort afstand til vandet, hvilket øger områdets rekreative og kommercielle attraktivitet.
Projektet giver fleksibilitet, idet køber kan vælge enten at udstykke og sælge grundene enkeltvis eller udvikle projektet med opførelse af færdige sommerhuse. Køber forestår selv udstykning, byggemodning og den videre udvikling i overensstemmelse med lokalplanens bestemmelser.
En attraktiv projektmulighed for den, der søger et overskueligt sommerhusprojekt i et planmæssigt afklaret område tæt på kysten.

